Privado
Poligono Industrial Mutilva Baja (Navarra)
2026
Actividad Clasificada, Industrial
NECESIDAD
Promoción de dos naves industriales para actividades industriales y/o comerciales en Polígono industrial de Mutilva Baja (Navarra).
PLANTEAMIENTO
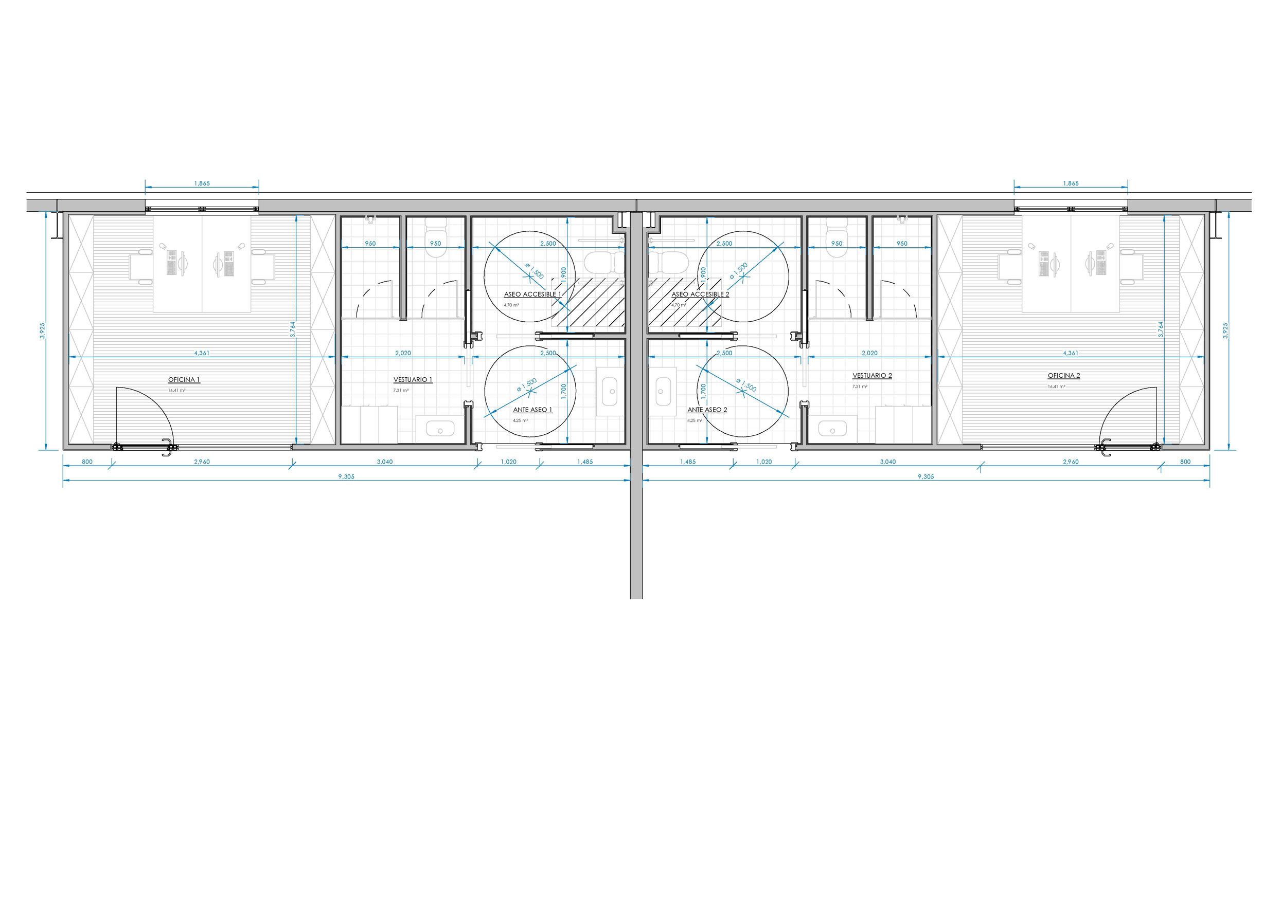
Nave en estructura metálica con sistema estructural tipo pórtico. Superficie objeto de ejecución: 1.105,48 m².
Cuéntanos algo sobre tu Proyecto industrial
Los entornos profesionales están cambiando, los retos de las empresas requieren de nuevos conocimientos. Los equipos de trabajo demandan perfiles multidisciplinares; y eso es en lo que se ha transformado LAingenieros.
Desde hace mas de 5 años el estudio ha promovido un HUB tecnológico [La Tierra Colabora], donde convergen además de profesionales ligados a la edificación industrial, profesionales de la robótica, el big data o la programación. Y en esa convivencia de diferentes perfiles surge la innovación, y eso es lo que perseguimos en LA ingenieros; Innovar día a día, como mejora continua en nuestro flujo de trabajo.










